埼玉総合物流センター

埼玉県の南東部、草加市に位置し、外環自動車道を中心に、常磐自動車道・東北自動車道・首都高速へのアクセスにも恵まれ、首都圏全体への配送拠点として絶好の立地にあります。
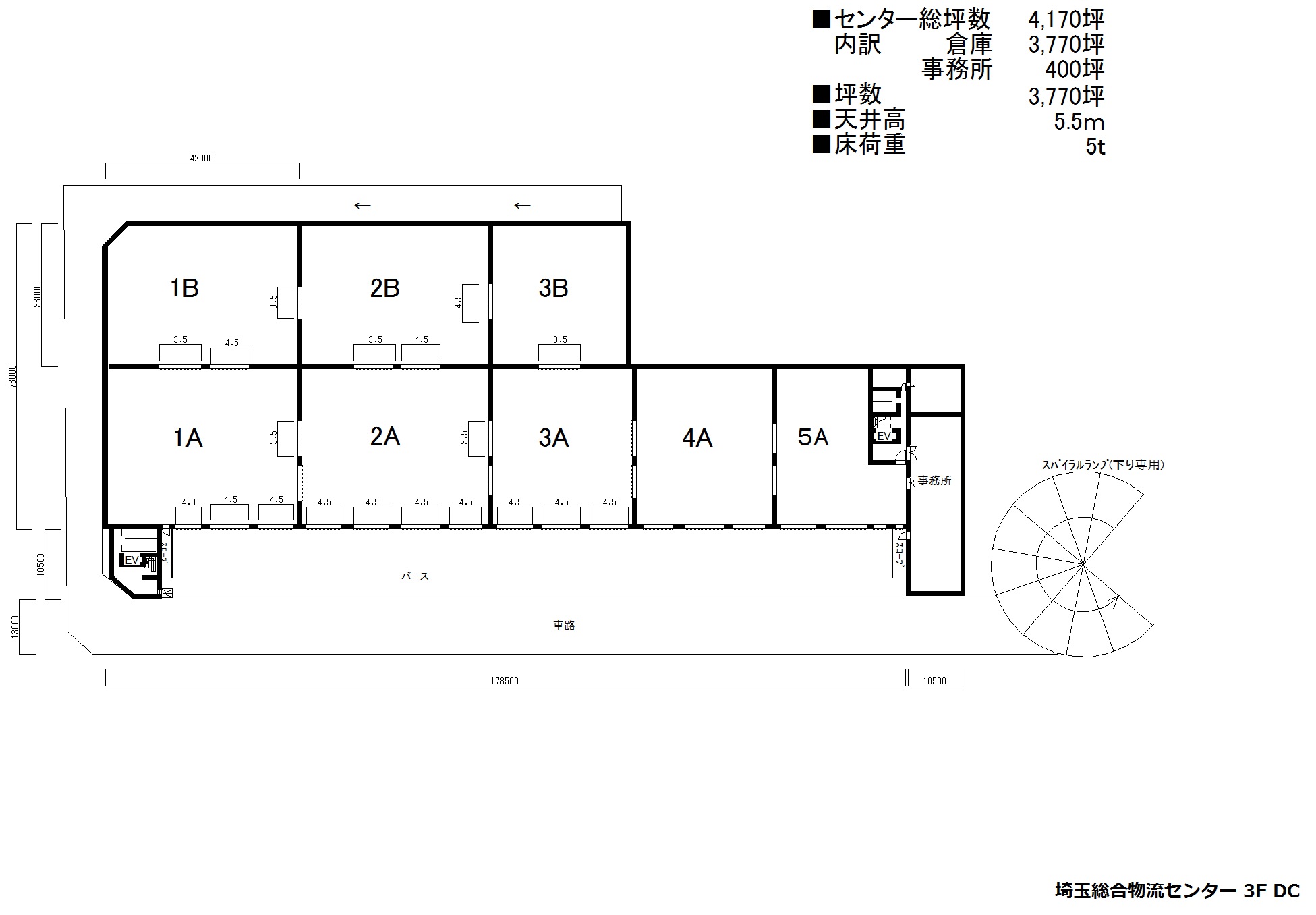
当センターは、24時間稼働が可能な全天候型の物流センターで、大型トラック32台が同時に横付けできる小山企業グループ最大級の物流拠点となりました。他にも、「入口、出口が別の一方通行のスロープ・ランプウェイによりトラックが荷捌き場までスムーズにアクセス」、「商品の大量保管・大量搬送に適した1フロアータイプの大型倉庫」、「省スペース型の電動移動ラック(レールレス方式)」などの施設を備え作業の効率化を実現します。
また、埼玉総合物流センターと草加第3センターは隣接しており、お客様による物流増減の対応にも適しております。

倉庫内
倉庫内
ヤード
倉庫前スペース

各倉データ


案内図

埼玉総合物流センター

埼玉県草加市青柳1-6-39
TEL. 048-931-1164
FAX. 048-933-4336

■各所要時間

車の場合
・首都高速6号線 八潮南より・・10分
・東京外環自動車道 三郷西より・15分

電車の場合
・東武伊勢崎線 松原団地駅より、
 路線バス15分

※住所をクリックしますと、グーグルマップで詳細な場所が表示されます。

本社サービスセンター
本社倉庫
本社サービスセンター
小玉倉庫
新曽南サービスセンター
厚木サービスセンター
和光サービスセンター
草加サービスセンター
埼玉総合物流センター
草加第3センター
越谷サービスセンター
  • 戸田市 3箇所
  • 和光市 1箇所
  • 草加市 3箇所
  • 越谷市 1箇所
  • 厚木市 1箇所

物流拠点

埼玉県南部・東部に数多くの営業倉庫・貸倉庫を保有しております。首都圏や関東圏の配送拠点として、大変良い立地条件となっております。

営業倉庫

ケース、ピース、パレット等、どんな形態の商品でもお預かり致します。また、保管サイクルは、1日単位から、1ヶ月単位と幅広く取り扱っております。

不動産賃貸

倉庫賃貸として、数多くの物件を管理しています。倉庫以外にも、事務所・店舗・作業場等の物件も取り扱っております。

輸配送

配車センターによる一括配車システムを使用しており、空車両を利用した、リードタイムの短縮とコスト削減を図っております。

情報管理システム

お客様の商品特性に合わせて、管理システムを変更しています。商品の在庫状況や入出庫状況等の商品動向情報を、お客様へ提供致します。

流通加工

流通加工センター基点として、全センターでの対応が可能です。在庫の管理から発送まで、全ての流れを一貫しておこなっております。